3039 CHICAGO AVENUEHAINES CITY, FL 33844
Due to the health concerns created by Coronavirus we are offering personal 1-1 online video walkthough tours where possible.

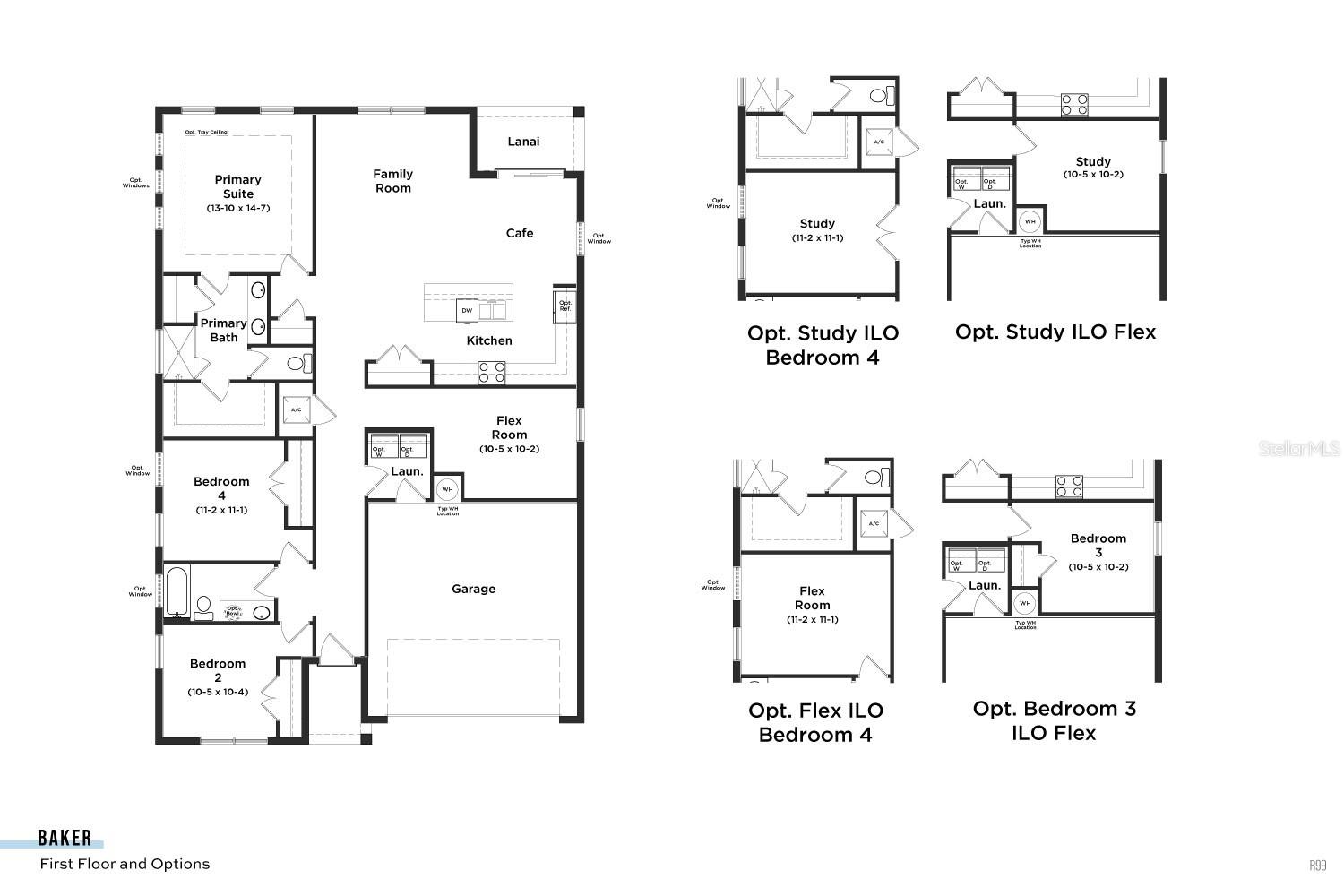
Under Construction. Beautiful Single Level, 2 Car Garage Home with Open Concept Living and 3 large Bedrooms! This Baker plan is in a Traditional elevation. Adjacent to the foyer you'll find 2 secondary bedrooms and a full bathroom with cabinets and tile to the ceiling in the tub/shower combo. The well-appointed kitchen includes an island with shaker style cabinets and peppered ash granite countertops. The kitchen overlooks the spacious family room with 17in light beige tile and adjoining cafe with access to the paver stone covered lanai. The primary suite, with tray ceiling, boasts an ensuite bathroom with dual sink vanity, shower with tile to the ceiling, private water closet, and large walk-in closet. The Study option has dual glass doors to complete the look of this modern bright and airy floor plan which will make any family treasure their memories in this home.
3 hours ago | Listing updated with changes from the MLS® | |
7 hours ago | Listing first seen on site |

Listing information is provided by Participants of the Stellar MLS. IDX information is provided exclusively for personal, non-commercial use, and may not be used for any purpose other than to identify prospective properties consumers may be interested in purchasing. Information is deemed reliable but not guaranteed. Properties displayed may be listed or sold by various participants in the MLS Copyright 2025, Stellar MLS.
Last checked: 2025-10-15 10:10 PM EDT
Did you know? You can invite friends and family to your search. They can join your search, rate and discuss listings with you.